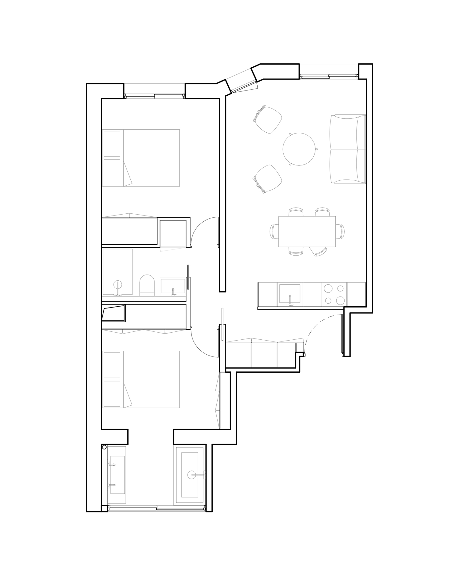
Les occupants de l’appartement rue Charles Fourrier, un 50 mètres carrés initialement séparé en deux-pièces, souhaitent qu’il soit transformé trois-pièces, pour l’adapter à l’évolution de leur foyer. L’intervention d’o-ficina s’attache à redéfinir les usages dans un espace contraint, en veillant à préserver la qualité et la générosité des volumes existants.
L’enjeu principal est d’ajouter une seconde chambre sans altérer la perception d’espace. En restructurant le plan autour d’une séparation claire entre les espaces de jour et les espaces de nuit, les circulations sont limitées au strict nécessaires. L’élargissement d’une ouverture dans un mur porteur permet aussi de simplifier la distribution du logement.
L’entrée, conçue comme un espace de transition, intègre un cellier qui filtre les vues depuis le palier mais révèle toute la profondeur de la pièce. Cet espace central distribue d’un côté les pièces de vie et de l’autre, les espaces privatifs composés de deux chambres, d’une salle de bain et d’une salle d’eau. L’ancienne loggia, fermée par les précédents propriétaires, a été réinvestie pour créer une suite parentale.
L’appartement conserve son caractère traversant, offrant une chambre côté rue et une autre côté jardin, conciliant ouverture et intimité.
Nom du projet :
Rue Charles Fourrier







